698
Dreifachkindergarten Dottikon

SDO 11
SDO 02
SDO 13
DOT 04
SDO 14
DOT 01
698 Querschnitte A 200
Bildschirmfoto 2025 09 18 um 11 00 12 1
698 EG 200 Nord ohne Zahlen

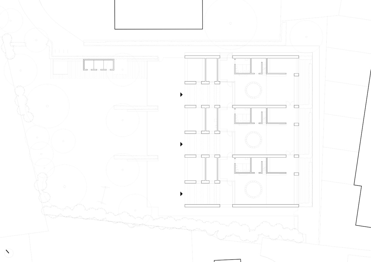
Die drei Kindergärten werden in einer einfachen Struktur aus robustem Mauerwerk aneinandergereiht. Das Grundkonzept von drei unabhängigen Kindergärten ermöglichte die gewünschte Flexibilität einer späteren Umnutzung der nördlichen Einheit. Im zentralen Bereich werden die Haupträume vertikal differenziert und dem Volumen entwächst ein doppelthoher Aufbau mit beidseitig einfallendem Licht. Die Längsfassaden sind offen gestaltet und die grossflächigen Verglasungen zwischen den Schotten sorgen für die Durchlässigkeit in der gesamten Gebäudetiefe.

In der Anordnung der gemeinsamen Nutzungen, Lehrerzimmer und Multifunktionsraum entstehen grosszügige, gedeckte Aussenbereiche, die den Übergang zwischen innen und aussen bilden. Der verbindende Eingangs- und Garderobenstrang lässt das Haus in seiner gesamten Länge spürbar werden. Die Innenräume der einzelnen Einheiten weisen wiederum direkte und unmittelbare Bezüge zu den gruppeneigenen Aussenräumen auf und bilden so jeweils eine kleine ungestörte Welt. 

Jede Einheit hat seinen eigenen, grossen, gedeckten, mit Oberlichtern, ausgestatteten Eingangsbereich. Der wichtige pergolaartige Aussenraum lässt sich in Verbindung mit der inneren Raumfigur wie ein grosszügiges Aussenzimmer leben, das den Alltag reichhaltig erweitert und ergänzt. Über die laterale Garderobe gelangt man in den doppelthohen Bereich des Hauptraumes mit der Galerie. Die vertikale Gliederung des Hauptraumes schafft eine räumliche Mitte. Gruppenraum, Spielgalerie, Garderobe und Aussenzimmer bilden dabei verschiedenartig erleb- und bespielbare Nischenbereiche und ermöglichen eine atmosphärische Vielfalt innerhalb einer Kindergartengruppe. Die Heckenzimmer im Aussenbereich bilden eine Fortsetzung dieser Raumfolge. Die Disposition und Gestaltung der Räume ermöglicht einerseits eine gute Übersicht für die Lehrpersonen, andererseits bieten sich den Kindern Rückzugsorte zum ruhigen Spielen.

Projekt Dreifachkindergarten Dottikon
Kurzbeschrieb Neubau 3-fach Kindergarten
Form Neubau
Nutzung Kindergarten
Bauherrschaft Einwohnergemeinde Dottikon
Ort 5605 Dottikon
Auftragsart Wettbewerb 1. Preis
Zeitraum 2017–2020
Leistungsphasen alle
Landschaftsarchitektur raderschallpartner ag Meilen
Bauingenieurwesen Gerber + Partner Bauingenieure und Planer AG Windisch
Holzbauingenieurwesen Makiol Wiederkehr AG Beinwil am See
Elektroplanung R+B engineering ag Brugg
HLS-Planung RMB Engineering AG Lenzburg
Bauphysik Akustik RSP Bauphysik AG Luzern
Bild Rasmus Norlander Zürich
Bewegtes Bild Severin Kuhn Zürich