690
Mehrfamilienhaus Brühlstrasse Klingnau

690 Situation 500 x
690 Nordostfassade 200 ohne Beschriftung
690 Grundriss EG 200 NP ohne Beschriftung
690 Attikageschoss Wohnungstypen 50 ohne Beschriftung
690 Nordwestfassade 200 ohne Beschriftung

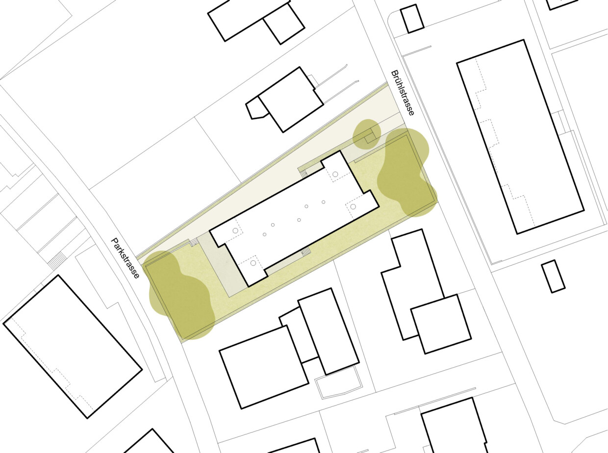
Das Mehrpersonenhaus an der Brühlstrasse bietet neuen Wohnraum für neun Parteien - Singles, Paare oder kleine Familien. Der Standort des Grundstücks befindet sich in unmittelbarer Nähe des Bahnhofs Döttingen und des Naherholungsgebiets am Ausgang des unteren Aaretals, dem Klingnauer Stausee.

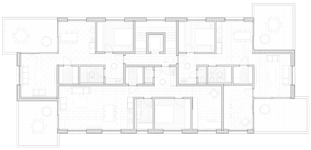
Der längliche dreigeschossige Baukörper positioniert sich mittig auf der schmalen und tiefen Parzelle zwischen Brühl- und Parkstrasse. Diese Setzung führt auf dem eigenen Grundstück zu grösstmöglichen Freiräumen sowie Weiten nach Osten und Westen. Eine Haltung, die bei einem strukturellen Wandel in dieser sehr heterogenen gebauten Nachbarschaft auch in einem künftigen Kontext die Qualitäten erhalten und sichern kann. In einem kompakten und effizienten Volumen wird die Typologie des Dreispänners auf allen Geschossen angewendet. Auf die Ausbildung eines flächenmässig stark reduzierten vierten Geschosses mit einer einzelnen Wohnung wird aus städtebaulicher und architektonischer Sicht bewusst verzichtet. So liegen in der ortsbaulich angemessenen Volumetrie drei Wohnungen privilegiert an bester Lage 'oben auf'.

Die Bewohnenden gelangen gedeckt in den grosszügigen Eingangsraum des Mehrfamilienhauses. Über den zweiseitigen Lift wird das Gebäude auch rollstuhlgängig erschlossen. Der Wohnungsspiegel weist einen Mix von vier 2 1/2-Zimmerwohnungen und fünf 3 1/2-Zimmerwohnungen auf. Pro Geschoss gibt es drei Wohnungen mit gut proportionierten Räumen, die mindestens zweiseitig orientiert sind. Attraktive innenräumliche Bezüge von Wohnen und Essen mit dem privaten Aussenraum sollen für eine hohe Wohnqualität sorgen. Jede Wohnung ist optimal ausgerichtet und schaut in den eigenen Grünraum. Der wichtige private Aussenraum lässt sich in Verbindung mit der inneren Raumfigur wie ein grosszügiges Aussenzimmer leben, das den Wohnraum reichhaltig erweitert und ergänzt. In allen Gebäudeecken weisen die auskragenden und gedeckten Balkone in die Weite. Die drei 'Attika-Wohnungen' haben eine zusätzliche Überhöhe der Räume. Oberlichter in Entrée und Bad lassen ihre besondere Lage in Lichtstimmungen spürbar werden.

Projekt Mehrfamilienhaus Brühlstrasse Klingnau
Kurzbeschrieb Neubau Mehrfamilienhaus mit 8 Wohnungen
Form Neubau
Nutzung Wohnen
Bauherrschaft Privat
Ort 5313 Klingnau
Auftragsart Wettbewerb 1. Preis
Zeitraum 2016
Leistungsphasen TL 9% gem. SIA / abgebrochen