477
Wohnhaus Schützenmatt Brugg

477 02 04
477 05 06
477 06 14
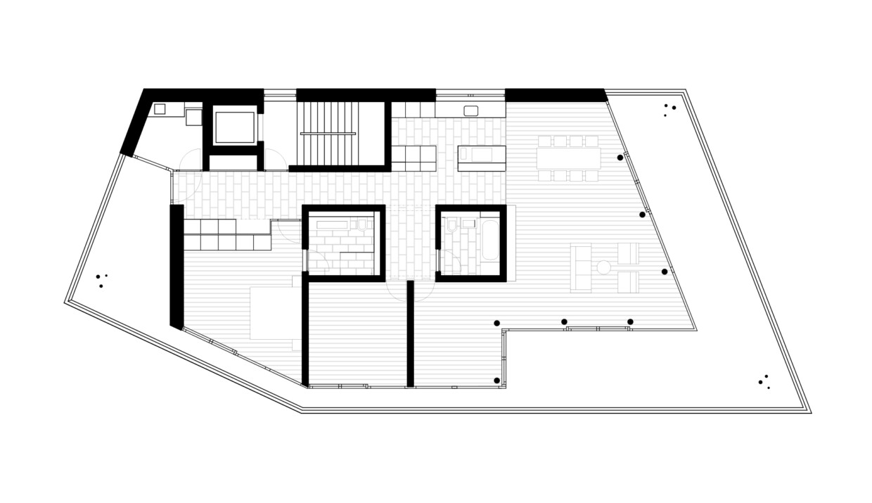
477 09 MFH Schützenmatt 50
477 01 02
477 04 07
477 g bschnitten

Das Wohnhaus liegt östlich der geschichtsträchtigen Schützenmatt, die geprägt ist von imposanten Platanen. Die Parzelle ist verwinkelt und schliesst im Norden mit einem dünnen Arm an die Schützenmattstrasse an. Aus dieser spezifischen Lage heraus ist ein polygonaler Baukörper mit grosszügigen Geschosswohnungen entstanden, die alle von der aussergewöhnlichen Beziehung zur Schützenmatt und der Sicht auf die pittoreske Brugger Altstadt profitieren. Die Tragstruktur des Punkthauses ermöglicht unterschiedliche Wohnformen und lässt eine Vielfalt von Möglichkeiten in der Wohnorganisation zu. Grosszügige private Aussenräume bieten einen Bezug nach aussen. Die verschiedenen Tiefen der gedeckten Terrassen und ihre mehrseitige Ausrichtung sorgen auch in der exponierten Lage des viergeschossigen Wohnhauses für Intimität und grosse Aufenthaltsqualität. Der präzis gesetzte kompakte Baukörper mit seiner zeichnenden Holzfassade scheint aus dem gebauten Terrain der Schützenmatt herausgewachsen.

Projekt Wohnhaus Schützenmatt Brugg
Kurzbeschrieb Neubau Mehrfamilienhaus mit 4 Geschosswohnungen
Form Neubau
Nutzung Wohnen
Bauherrschaft Privat
Ort 5200 Brugg
Auftragsart Wettbewerb 1. Preis
Zeitraum 2007–2014
Leistungsphasen alle
Bauingenieurwesen Mund Ganz + Partner AG Brugg
HLKS-Planung Huustechnik Rechberger AG Zürich
Elektroplanung R+B engineering ag Brugg
Akustik Gandet Akustik Baden
Bauphysik Ehrsam & Partner Immobilien AG Pratteln
Bild Reinhard Zimmermann Baar